湖北麻城某隧道汙水處理(lǐ)站項目
發布時間:2025-02-22   瀏覽:2302次(cì)
qualification

汙(wū)水案例

我們在努力締造更多(duō)榮譽的路上

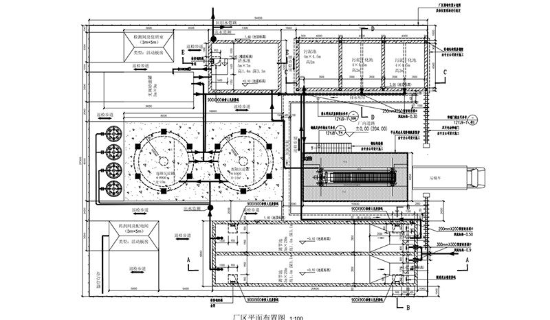
湖北麻城某隧道汙水處理站項目EPC總承包工程 主要建設內容為土建預埋、汙水處理廠設備、設備安裝、電氣儀(yí)表、園區內管網等總包工程。預計(jì)汙(wū)水廠遠期處理規模將達(dá)到3000方

1

2

3

4

5

6

7

8

9

聯係方式

電話:0373-5829877

郵箱:105544232@qq.com

地(dì)址:河南省新鄉市鳳泉區(qū)大(dà)塊鎮陳堡村工業區北辰路南7號

版權所有 河南91抖阴下载環保(bǎo)設備(bèi)有(yǒu)限(xiàn)公(gōng)司  備案號:豫(yù)ICP備19046121號-1 
91抖阴下载_91抖阴视频_91抖音成人版_91抖阴免费版